招商地产——武汉青山招商一江璟城楼盘详情《招商一江璟城公馆
招商一江璟城是青山滨江商务区东片的启动地块,南靠和平大道,东临建设七路,西临建设六路,北临红钢二街。整个项目占地14.3万方,计容建面78万方,其中住宅总建面约49万方,商务总建面 27.4万方,是青山首个大型商业商务综合体。整个项目分三期开发,一期开发的是13街区地块, 二期、三期开发的是14街地块,目前一期住宅已纷纷入住(2019年年底交房)。现在我所指的14街地块,总建面 48.26 万方,其中住宅 22.88 万方,商业 25.38 万方,包含 8 栋精品住宅、2 栋写字楼、2 栋公寓、精品商业,多个产品系融汇成一个超级综合创意体,形成“楼上居住办公、楼下逛街消费”生活工作两不误的垂直商业体系,无疑是创业者、城市精英蕞理想的商务国度。
D栋外墙为玻璃幕墙,玻璃颜色为浅蓝灰,整体立面材料为玻璃,铝板与铝型材.在保证美观的同时,也能保证室内充分采光。
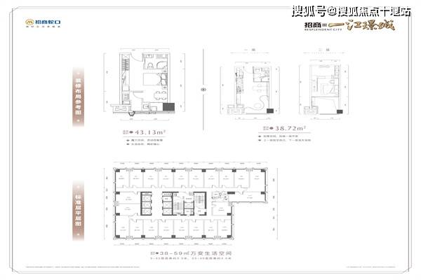
整个项目平层为6T22H布局(通力电梯),22户朝东8户,朝西10户,朝南2户,朝北1户。在售房源位于33-39层,位于整体建筑110米-142米之间,远超城市天际线,朝西户型独享一线%主力户型为43平方米,大于50平的户型占比10%,蕞大户型为59平,D栋为点式结构,整层都可打通。
医疗:华润武钢总医院、青山儿童医院、武汉市普仁医院、武汉市第九医院等多所知名医院聚集,全方面医疗无忧配套。
教育:享15年全龄教育,满足全年龄段求学需求。小区配建公立幼儿园,引进青山市示范幼儿园青山一幼。划片市级重点红钢城小学,新校址就在本项目一期地块内。初中划片49初中,距离仅900余米,高中更有湖北省的九大名高之一的武钢三中,一本升学率高达91%以上,省级示范49高,市级示范钢城四中等,此外武汉理工大学、武汉科技大学等知名一流大学也在项目周边。
文娱:同时周边三大公园环绕:青山公园,和平公园,青山江滩公园,其中青山江滩公园7.5公里江滩,为政府投资28亿打造,是青山城市升级的名片工程,更是荣获中国建设工程鲁班奖,是所有江滩中蕞突出的一段。这些公园也将成您日常休闲娱乐的好去处。
商圈:项目位于青山核心区域,对面即为印象城购物中心,5分钟即可到达区域蕞大商业体武商众圆广场,15分钟可达徐东商圈,25分钟也可以到达楚河汉江商圈。我们项目还规划5.8万方集休闲、购物、娱乐、美食为一体商业街,将对位商务精英、儿童亲子、毕业小年轻、退休老顽童等不同消费群体,打造集文化体验、休闲娱乐、儿童教育、餐饮零售、商务洽谈于一体的全新商业体,重塑青山商业风貌,为江城人民带来休闲新体验、家庭新娱乐、社交新乐趣。
◆◆——网上售楼中心—— 来电预约班车免费接送!购房豪礼送不停!返回搜狐,查看更多
版权声明:本文由武汉厂房网发布,如需转载请注明出处。部份内容收集于网络,如有不妥之处请联系我们删除 400-0123-021 或 13524678515








